?
屋面水落口、溢水口细部渗漏分析及对策
发布时间:2021-10-14浏览量:
常见问题现象
  1. 水落口处防水层未处理好出现的渗漏水。
  2. 未设置溢水口出现屋面蓄水
规范标准相关规定 《屋面工程质量验收规范》GB 50207-2012
6.2.12和6.3.6 防水层在檐口、檐沟、天沟、水落口、泛水、变形缝和伸出屋面管道的防水构造,应符合设计要求。
8.5.4 水落口周围直径500mm范围内的坡度不应小于5%,水落口周围的附加层应符合设计要求。
8.9.4 反坎梁过水孔的孔洞四周应涂刷防水涂料;预埋管道两端周围与混凝土接触处应留凹槽,并应用密封材料封严。
《广东省建筑防水工程技术规程》DBJ 15-19-2006
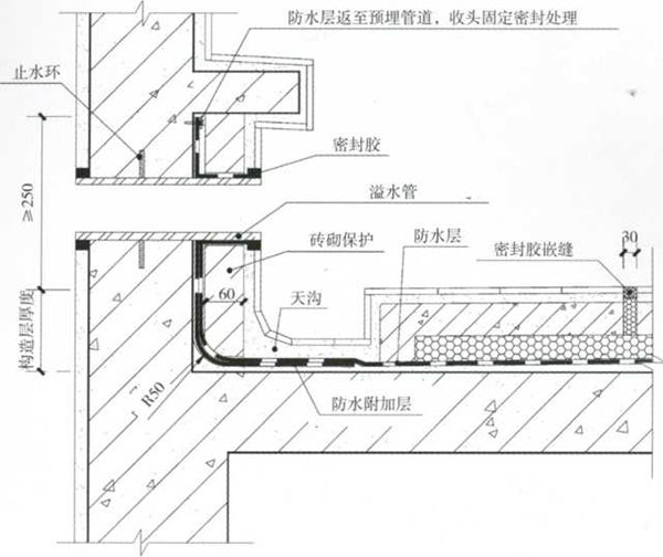
4.2.10当天沟外檐板高于屋面最终完成面300mm时应设置溢水口
原因分析
  1. 水落口处未做防水附加层,未按要求翻入水落口内。
  2. 防水层收头处没有做好密封固定措施。
  3. 未设置溢水口。
  4. 水落口与屋面板之间填塞不密实
预防措施
  1. 水落口周围直径500mm范围内的坡度不应小于5%,水落口与基层交接处宜留凹槽,并嵌填耐候密封胶。
  2. 防水层和附加层应伸入落水口内不小于50mm,并应粘结牢固。
  3. 过水孔的孔洞四周应涂刷防水涂料,预埋管道两端周围与混凝土接触处应留凹槽,并应用密封材料封严。
  4. 卷材防水层收头处应用密封胶密封处理,涂膜防水层收应多遍涂刷密封处理。
  5. 按规范要求设置溢水口,防水层与溢水口接头处密封完整。
  6. 水落口与屋面板之间预留洞空隙宜选用聚合物细石混凝土分两次填塞
一般工序 基面清理->细部防水附加层施工->大面防水层施工,防水层收头伸入落水口内并密封处理
参考图示 防水材料
防水材料
上一篇:屋面防水基层不合格导致渗漏原因分析及对策
下一篇:如何做好防水卷材搭接及预防措施
热门资讯