?
屋面变形缝细部防水构造措施不当引起的渗漏原因及预防措施
发布时间:2021-10-14浏览量:
常见问题现象

屋面变形缝细部防水构造措施不当引起的渗漏

规范标准
相关规定

《屋面工程技术规范》 GB 50345-2012

4.11.18变形缝的防水构造应符合下列规定:

1.变形缝泛水处的防水层应增设附加层,附加层在平面和立面的宽度不应小于250mm;防水层应铺贴或刷至泛水墙的顶部。

2.变形缝内应预填保温材料,上部应采用防水卷材封盖,并放置衬垫材料,再在其上干铺一层卷材。

《屋面工程质量验收规范》 GB 50207-2012

8.6.5 等高变形缝顶部宜加扣混凝土或金属盖板。混凝土盖板的接缝应用密封材料封严;金属盖板应铺钉牢固,搭接缝应顺流水方向,并应做好防锈处理。

8.6.6 高低跨变形缝在高跨墙面上的防水卷材封盖和金属盖板,应用金属压条钉压固定,并应用密封材料封严

原因分析

1.变形缝只做构造防水,没有采用柔性防水设防。

2.无采用混凝土反坎梁,只采用砖砌体反坎梁,形成变形缝防水能力不足。

3.变形缝反坎梁边没有预留足够变形空隙,同时防水设防不足、无嵌填柔性密封材料。

4.屋面构造层因热胀冷缩推裂反坎梁阴角部位(砖砌反坎梁尤为突出),变形缝的泛水部位没有做防水增强层。

5.变形缝的防水层没有采用具有足够变形能力的材料以及施工过程中没有预留足够变形余置。

6.变形缝密封材料黏结、延伸率不足,往往在结构变形及温差作用两者共同作用下产生开裂、脱离等现象。

预防措施

1.对变形缝的防水处理必须选用变形能力强及耐老化性能的合成高分子防水卷材,并应具备有效的密封构造措施。

2.屋面变形缝应避免设计成平缝,变形缝墙应采用≥C20混凝土浇筑,不得采用砖砌。变形缝墙体宜与屋面结构板一起浇捣,不留施工缝。如不能一次浇捣,应在墙体浇捣前施工缝位置嵌填5x8mm遇水膨胀密封胶。

3.在变形缝内填背衬材料及弹性密封材料,对等高变形缝在墙顶铺贴一条通长“U" 形防水卷材,宽度与墙面同,先贴好一面,缝中嵌入聚乙烯泡沫塑料棒作衬垫,再粘贴另一面,上面再盖一层高分子卷材,并与防水层相连接粘牢,形成整体防水层。然后在变形缝顶部加钢筋混凝土盖板或金属盖板,混凝土盖板接缝用密封胶嵌填密实。

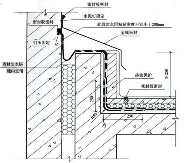
4.对高低跨变形缝,则按“U"形方式铺设卷材,卷材上方的收头应塞入高跨墙体预留的凹槽内,用压条或垫片钉压固定,凹槽上部再用金属披水板钉压固定。卷材收头及金属板均用密封材料封严。

5.变形缝两侧防水层应满粘,纵向搭接宽度不小于200mm并密封严密。

一般工序

高平缝:清缝→缝内填充→铺贴"U"形卷材→“U”形内嵌入泡沫棒→铺贴高分子卷材隔离层→保护层→混凝土或金属盖板。

高低缝:清缝→缝内填充→铺贴"U"形卷材→收头收入凹槽并用压条或垫片钉压 固定→凹槽上部用金属批水板钉压固定→收头密封

参考图示


屋面变形缝构造示意图(一)

屋面变形缝构造示意图(二)

屋面变形缝构造示意图(三)
上一篇:防水施工完毕,我们还有哪些活要做好才算完美收尾?
下一篇:如何正确处理出屋面管井、烟道井细部构造措施不当引起的渗漏
热门资讯