?
如何解决坡屋面常见渗漏问题?
发布时间:2021-10-14浏览量:
常见问
题现象

1、混凝土有蜂窝、麻面、露筋等缺陷,表面强度较差。

2、屋面四周未设置混凝土反坎梁,或反坎梁处积水渗漏。

3、管道、天窗、预埋件等细部未嵌柔性耐候密封胶,防水层未上翻。

4、出屋面烟道、山墙交接处和檐沟防水层开裂渗漏

规范标准
相关规定

《坡屋面工程技术规范》GB 50693-2011

3.2.12 细石混凝土找平层、持钉层或保护层中的钢筋网应与屋脊、檐口预埋的钢筋连接。

3.2.18 钢筋混凝土檐沟的纵向坡度不宜小于1%。檐沟内应做防水。

3.3.3 穿出屋面的管道、设施和预埋件等,应在防水层施工前安装。

3.3.9 屋面转角处、屋面与穿出屋面设施的交接处,应设置防水垫层附加层,并加强防水密封措施。

7.1.4 块瓦屋面应采用干法挂瓦,固定牢固,檐口部位应采取防风揭措施。

8.3.4 檐沟防水层应由沟底翻上至外侧顶部,卷材收头应用金属压条钉压固定,并应用密封材料封严;涂膜收头应用防水涂料多遍涂刷。

8.3.5 檐沟外侧顶部及侧面均应抹聚合物水泥砂浆,其下端应做成鹰嘴或滴水檐

原因分析

1、屋面结构板浇捣不密实或采用干硬性混凝土,存在蜂窝、裂缝等缺陷,混凝土强度不足。

2、四周未设置现浇混凝土反坎梁,或未在反坎梁处预留泄水孔产生雨水积聚。

3、檐沟未进行防水增强处理,采用耐候性较差的防水层。

4、选材有误,尤其在抗滑要求的斜屋面存在大置抗滑钢筋而采用卷材进行施工,其穿洞节点过多,密封困难容易形成渗漏。

5、出屋面的烟道、山墙交接处泛水上翻高度不够,收头未密封处理。

预防措施

1、采用双模板浇筑混凝土,不应采用单模板干硬性混凝土进行浇捣,浇捣应充分,均匀振捣密实,浇捣后应及时湿润养护。

2、结构表面宜用聚合物水泥防水砂浆找平处理。预埋钢筋根部用聚氨酯密封胶密封并抹成倒角。

3、四周设置现浇混凝土反坎梁并设置防下滑钢筋并预留泄水孔。

4、檐沟纵向坡度不应小于1 %,沟底落差不得超过200mm,檐沟防水附加层应满涂。

5、宜根据坡屋面特点采用耐候性柔性防水涂料做防水层,并整体防水设施。

6、檐沟防水附加层宜采用合成高分子防水涂料,应由沟底翻上至外侧顶部,防水层上翻高度为高出建筑完成面不少于250mm,防水层与基层粘结牢固并加强防水层收头密封措施

一般工序

技术交底→双模板浇筑混凝土→聚合物水泥砂浆找平→防水附加层→整体防水层施工→细部防水收头密封处理→保护层及饰面层施工

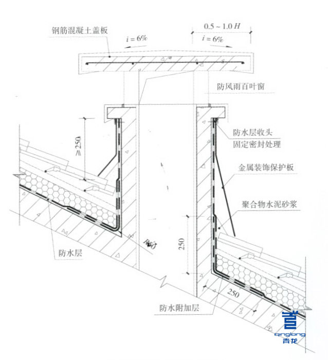
参考图示

防水

坡屋面檐沟防水构造示意图

防水

锚筋防水处理构造示意图

防水

坡屋面内天沟构造示意图

防水

坡屋面烟囱泛水构造示意图

防水

老虎窗平面示意图

防水

老虎窗1-1构造示意图

防水

老虎窗2-2构造示意图

上一篇:如何解决找坡层问题引起的渗漏
下一篇:建筑外墙针对防水项目一般有哪些规定
热门资讯