?
如何预防和处理脚手架残留件、临时施工孔洞及预埋件未作防水密封处理引起渗漏
发布时间:2021-10-14浏览量:
常见问
题现象

脚手架残留件、临时施工孔洞及预埋件未作防水密封处理引起渗漏

规范标准
相关规定

《建筑防水工程技术规程》DBJ 15-19-2006

4.5.1.4 外墙的各类预埋件、安装螺栓以及穿过外墙管道(槽)、套管等与外墙体交接处应预留交槽并嵌填密封材料。

原因分析

1、外墙没有清理残余脚手架端头残留件及临时固定件,成为蓄水空腔。

2、对施工过程中临时孔洞没有进行有效填塞密实,形成渗漏路径。

3、外墙时间很长的预埋件周边无密封措施。

预防措施

1、外墙拆除脚手架时,必须及时同步对脚手架端头残留件及临时固定件清除,并使用聚合物水泥防水砂浆嵌填密实,严禁使用发泡聚氨酯材料嵌填。要求嵌填密实、无开裂现象。

2、对外墙施工临时孔洞应采用速凝聚合物防水砂浆嵌填密实,如孔洞大于200mmx200mm时应在该部位修复墙体。严禁使用发泡聚氨酯材料嵌填。要求嵌填密实、无开裂现象。

3、对外墙时间很长的预埋件应在其周边预留凹槽,并嵌填耐候合成高分子密封胶。

一般工序

1、清除外墙脚手架,清理残余脚手架端头残留件及临时固定件。

2、对孔洞进行清理尘土、去除沙泥及杂物,并润湿基面。

3、孔洞内涂刷聚合物水泥胶浆界面剂。

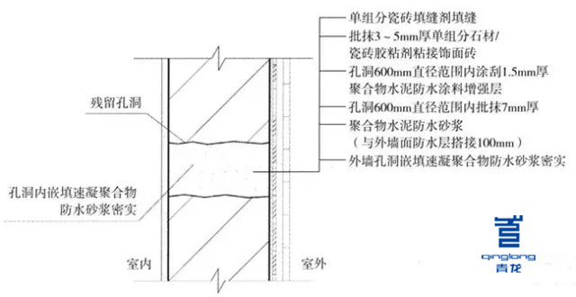
4、孔洞内嵌填速凝聚合物防水砂浆或灌注聚合物类水泥胶浆,要求嵌填密实、饱满,无脱空、蜂窝现象。

5、孔洞周边600mm范围内批抹7mm厚聚合物水泥防水砂浆及加涂1.5mm聚合物水泥基防水涂料作增强处理,并与外墙防水层搭接不少于100mm。

6、洞口周边采用瓷砖胶粘贴饰面层。

参考图示

外墙防水
外墙孔洞密封大样示意图

上一篇:如何预防和处理穿墙管周边渗漏
下一篇:如何预防和处理外墙梁墙交接缝渗漏
热门资讯