?
常见问 题现象 |
外墙变形缝渗漏 |
规范标准 相关规定 |
《建筑防水工程技术规程》DBJ 15-19-2006 4.5.1.5 外墙体变形缝必须做防水处理。柔性防水层宜用合成高分子防水卷材,两端应满粘贴并钉压牢固,且采用密封材料封严。 |
原因分析 |
1、变形缝无采用防水卷材进行设防,仅安装金属遮挡板。 2、变形缝内卷材端头收口密封不密实,且长向搭接边搭接不严存在松脱、空鼓情况。 |
预防措施 |
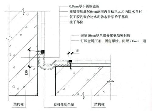
1、变形缝内卷材宜采用耐久性强、耐老化性强、抗拉强度高、延伸率大的合成高分子卷材,施工时应裁切正确并放线铺贴,变形缝内卷材预留足够的变形余量。 2、宜采用双面丁基橡胶胶粘带进行粘结及搭接。 3、卷材收口宽度宜为150mm,并采用金属压条钉压以及耐候合成高分子密封胶进行密封。 4、变形缝防水卷材宜使用自粘合成高分子防水卷材。 |
一般工序 |
1、变形缝两侧柱子表面各150mm对表面进行打磨,如有蜂窝麻面等缺陷采用聚合物水泥防水砂浆抹平,要求表面干燥、平整、无凹陷尖突等现象(注:如不进行打磨工艺,应采用聚合物水泥防水砂浆抹平,厚度为5~7mm为宜)。 2、采用自粘类型的合成高分子卷材作为防水层,根据现场情况开裁卷材尺寸,确定每幅卷材的宽度和长度,宽度要预留70~100mm作为缓冲变形余量,长度预留100mm作纵向搭接长度。 3、施工时从下往上进行施工,并将卷材隔禽纸揭开后按定位标志粘贴,粘贴要顺直、牢固,无起鼓、皱叠、粘贴不牢固等现象。 4、搭接边采用卷材可采用双面自粘丁基橡胶带粘貼,搭接时要紧密压实,不得存在漏搭、松动等缺陷。 5、卷材收头采用金属压条固定压实并嵌填耐候合成高分子密封胶密封。 6、安装变形缝金属盖板,安装应牢固不松动,且按流水防水进行搭接,注意不得在安装过程中损坏防水卷材。 7、变形缝两惻外墙饰面施工,并在与变形缝金属盖板接触部位留置宽度15~20mm、深度7~10mm的凹槽,并嵌填耐候合成高分子密封材料。 |
参考图示 |
|