?
服务热线
400-777-2203
高分防水卷材施工方法
丙烯酸盐喷膜防水涂料是一种什么防水材料?
丙烯酸盐喷膜防水涂料同其它防水材料相比有何优势?
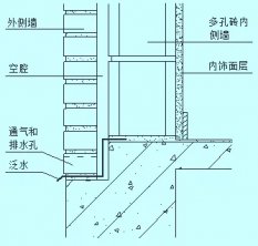
干货!外墙防水构造做法及外墙渗漏治理案例分析(四)
干货!外墙防水构造做法及其案例分析(三)